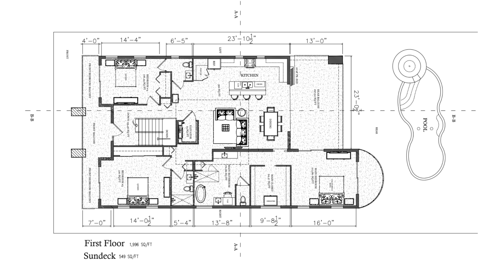
Estuary Estate

3 bedrooms
2.5 bathrooms
4 car carport

Hurricane Proof.   Fire Resistant.   Energy Efficient

Estuary Bottom Floor Plans

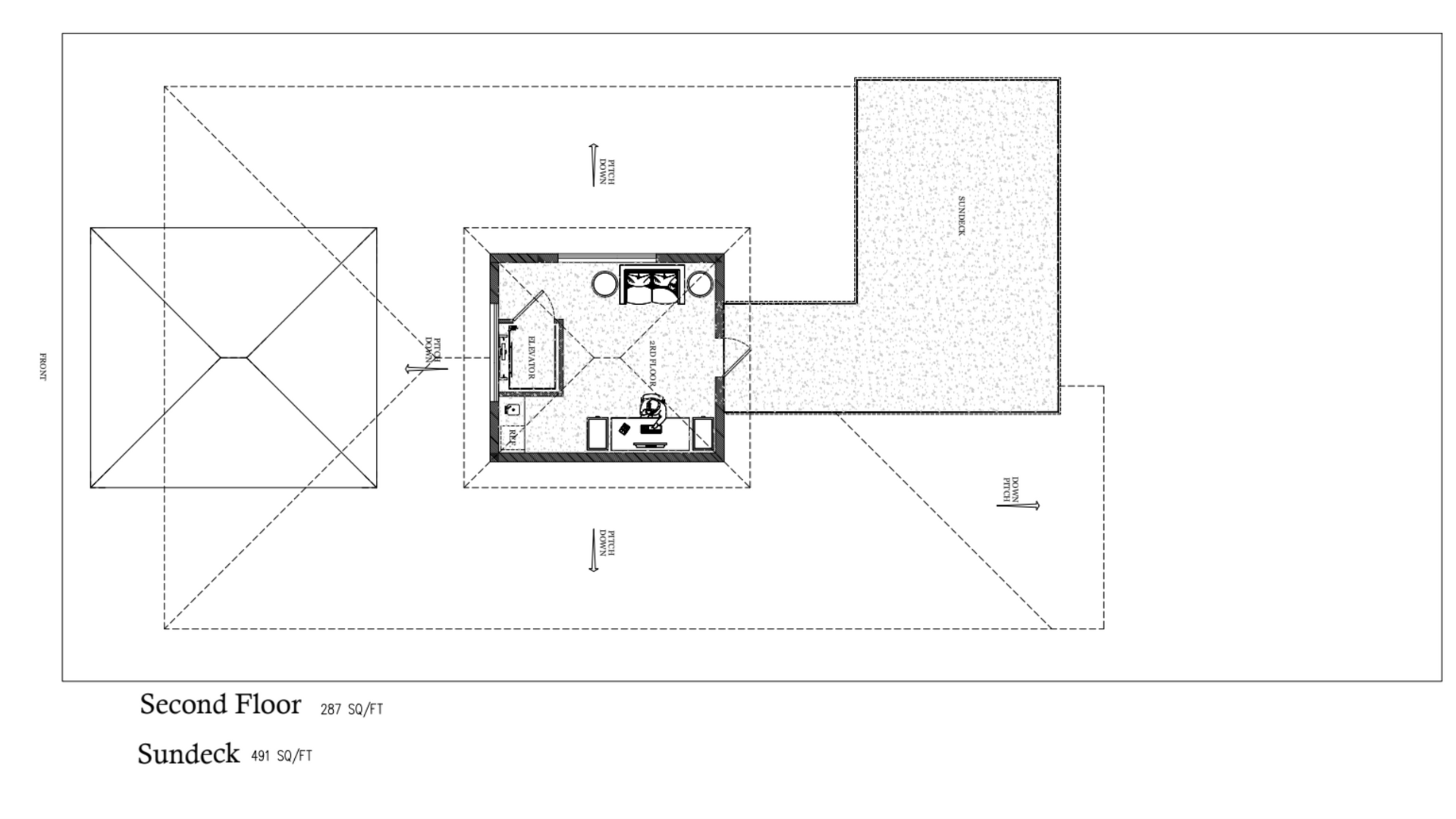
2nd Floor Plans

Estuary Top Floor Plans

Call now to speak with an expert

Come visit us at our Florida coast showroom to explore our model homes in person at 9310 Ulmerton Rd building 1 suite 800, Largo, FL 33771

(877) 321-4253